Συμπληρωματικές Πληροφορίες / Διευκρινήσεις επί των ερωτήσεων που τέθηκαν και αφορούν την υπ΄ αριθ. 13011/2/8-γ΄ από 21/05/2020 Διακήρυξη Συνοπτικού Διαγωνισμού Προμήθειας Ειδών και Παροχής Υπηρεσιών για την διαμόρφωση των εσωτερικών χώρων του Εθνικού Εκπ

Συμπληρωματικές Πληροφορίες / Διευκρινήσεις επί των ερωτήσεων που τέθηκαν και αφορούν την υπ΄ αριθ. 13011/2/8-γ΄ από 21/05/2020 Διακήρυξη Συνοπτικού Διαγωνισμού Προμήθειας Ειδών και Παροχής Υπηρεσιών για την διαμόρφωση των εσωτερικών χώρων του Εθνικού Εκπαιδευτικού Κέντρου για την Αντιμετώπιση Συμβάντων ΧΒΡΠ-Ε.

 

Εκδόθηκαν σήμερα ημέρα Παρασκευή 05/05/2020 οι διευκρινήσεις για τα ερωτήματα που υποβλήθηκαν για το διαγωνισμό, με κριτήριο ανάθεσης τη χαμηλότερη τιμή, με σκοπό την ανάθεση της προμήθειας ειδών και παροχής υπηρεσιών για την διαμόρφωση των εσωτερικών χώρων του Εθνικού Εκπαιδευτικού Κέντρου.

Έως την καταληκτική ημερομηνία και ώρα λήξης προθεσμίας υποβολής ερωτήσεων (4η Ιουνίου 2020 ημέρα Πέμπτη) τέθηκαν υπόψη της Αναθέτουσας Αρχής οι ακόλουθες ερωτήσεις:

 

1. ΕΡ: Πόσα τετραγωνικά μέτρα είναι οι χώροι που απαιτούνται να γίνει χρωματισμός;

ΑΠ: Οι συνολικοί χρωματισμοί αφορούν χώρο με επιφάνεια χίλια διακόσια (1200) τετραγωνικά μέτρα όπως υποδείχτηκε κατά την επίσκεψη των υποψηφίων στο χώρο.

 

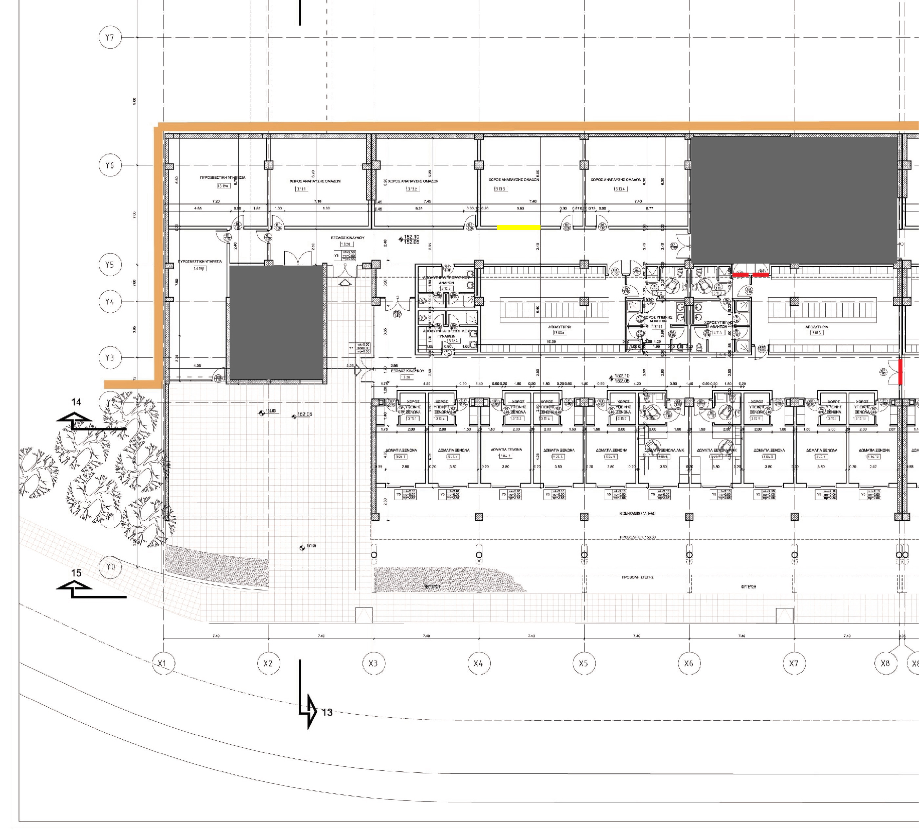
2. ΕΡ: Μπορείτε να μας στείλετε τη κάτοψη του χώρου;

ΑΠ: Επισυνάπτεται σε μορφή φωτογραφίας jpeg η κάτοψη του χώρου.

 

3. ΕΡ: Μπορείτε να οριοθετήσετε και να απεικονίσετε στη κάτοψη τα χωρίσματα από γυψοσανίδα, να αναφέρετε τα τετραγωνικά μέτρα που απαιτούνται και τι γίνεται σε περίπτωση που θα απαιτηθεί μεγαλύτερη ή μικρότερη ποσότητα;

ΑΠ: Στην κάτοψη η οποία επισυνάπτεται, αναφέρεται με κίτρινο χρώμα η θέση του ηλεκτρολογικού πίνακα και με κόκκινο χρώμα τα χωρίσματα που πρέπει να καλυφθούν με γυψοσανίδα.

 

4. ΕΡ: Πόσα είναι τα τετραγωνικά μέτρα των χωρισμάτων από γυψοσανίδα;

ΑΠ: Τα τετραγωνικά μέτρα τα οποία απαιτούνται για τα χωρίσματα από γυψοσανίδα είναι εξήντα (60).

 

5. ΕΡ: Η πόρτα που αναφέρεται στο Παράρτημα Ι, με αύξων αριθμό 7, τι διαστάσεις πρέπει να είναι και από τι υλικό θα είναι φτιαγμένη;

ΑΠ: Δεν απαιτείται.

 

6. ΕΡ: Οι θερμοσίφωνες που πρέπει να τοποθετηθούν είναι για χρήση μόνο του μπάνιου ή και του νιπτήρα και πως θα γίνει η ηλεκτροδότηση τους;

ΑΠ: Η προμήθεια και η τοποθέτηση θερμοσιφώνων που αναφέρεται στο Παράρτημα Ι, με αύξων αριθμό 10,θα αφορούν την χρήση του μπάνιου και του νιπτήρα,  θα ηλεκτροδοτούνται από τον κεντρικό πίνακα ηλεκτροδότησης και απαιτείται η προμήθεια και τοποθέτηση νέων γραμμών και ατομικών πριζοδιακοπτών σε κάθε κοιτώνα.

 

7. ΕΡ: Σχετικά με την ηλεκτρική παροχή θα γίνει μόνο έλεγχος και επιδιόρθωση των πριζών, των φωτών και του δικτύου ή θα τοποθετηθούν νέες γραμμές και νέα τοποθέτηση πριζοδιακοπτών; Εάν ναι από πού θα παίρνουν ρεύμα;

ΑΠ: Η προμήθεια ειδών και η παροχή υπηρεσιών που αναφέρεται στο Παράρτημα Ι, με αύξων αριθμό 11 και 13,θα αφορούν τον έλεγχο και επισκευή όλων των παροχών (ασθενή και ισχυρά ρεύματα), τοποθέτηση νέων πριζοδιακοπτών (ρεύμα και δίκτυο) όπου απαιτείται κατόπιν ελέγχου, καθώς και την επισκευή και αντικατάσταση των ελαττωματικών φωτιστικών (πλαίσιο φωτιστικού και λάμπες).

 

8. ΕΡ: Αναφέρεται ότι θα τοποθετηθεί ρελέ διαρροής/διαφυγής. Σε ποιο πίνακα θα τοποθετηθεί;

ΑΠ: Θα τοποθετηθεί ρελέ διαρροής/διαφυγής στον ηλεκτρολογικό πίνακα ρεύματος ώστε να καλύπτει τις νέες γραμμές και θα γίνουν τυχόν τροποποιήσεις στον ηλεκτρολογικό πίνακα.

 

9. ΕΡ: Πόσα τεμάχια πριζοδιακοπτών ρεύματος και πρίζες δικτύου απαιτούνται;

ΑΠ: Απαιτείται η προμήθεια και τοποθέτηση τριών ζευγαριών πριζοδιακοπτών και δικτύου στο χώρο Υ3, Υ6 και Υ5 όπως αναφέρονται στη κάτοψη και ο έλεγχος και επισκευή όλων των πριζοδιακοπτών στους υπόλοιπους χώρους. Απαιτείται επίσης η προμήθεια και τοποθέτηση διπλού καλωδίου δικτύου κατά μήκος του διαδρόμου που θα γίνουν τα χωρίσματα, το οποίο θα επικοινωνεί με τους χώρους Υ3, Υ6 και Υ5 ώστε να καλυφθεί η παροχή του εσωτερικού δικτύου της Αστυνομίας και του δικτύου από εξωτερικό πάροχο (αναμονή παροχής).

 

10. ΕΡ: Ποια τα περιεχόμενα και δικαιολογητικά του Φακέλου Προσφοράς προς υποβολή;

ΑΠ: Τα περιεχόμενα και δικαιολογητικά για την υποβολή Φακέλου Προσφοράς αναφέρονται λεπτομερώς στην παράγραφο 2.4.3 του Τεύχους Διακήρυξης.

Όσον αφορά το I΄ μέρος του ΤΕΥΔ του παράρτημα ΙV της παρούσης διακήρυξης παρακαλούμε όπως συμπληρωθεί αυτούσιο όπως παρακάτω. Εν συνεχεία ο οικονομικός φορέας θα συμπληρώσει όλο το ΤΕΥΔ που επισυνάπτεται ως doc στην περίληψη της διακήρυξης που αναρτάται στην σελίδα του ΚΕ.ΜΕ.Α. (επισημαίνεται ότι το ΤΕΥΔ πρέπει να είναι υπογεγραμμένο και με σφραγίδα εταιρείας):

ΠΑΡΑΡΤΗΜΑ IV –ΤΕΥΔ

ΤΥΠΟΠΟΙΗΜΕΝΟ ΕΝΤΥΠΟ ΥΠΕΥΘΥΝΗΣ ΔΗΛΩΣΗΣ (TEΥΔ)

[άρθρου 79 παρ. 4 ν. 4412/2016 (Α 147)]

για διαδικασίες σύναψης δημόσιας σύμβασης κάτω των ορίων των οδηγιών

 

Μέρος Ι: Πληροφορίες σχετικά με την αναθέτουσα αρχή/αναθέτοντα φορέα  και τη διαδικασία ανάθεσης

Παροχή πληροφοριών δημοσίευσης σε εθνικό επίπεδο, με τις οποίες είναι δυνατή η αδιαμφισβήτητη ταυτοποίηση της διαδικασίας σύναψης δημόσιας σύμβασης:

 

 

Α: Ονομασία, διεύθυνση και στοιχεία επικοινωνίας της αναθέτουσας αρχής (αα)/ αναθέτοντα φορέα (αφ)

– Ονομασία: ΚΕΝΤΡΟ ΜΕΛΕΤΩΝ ΑΣΦΑΛΕΙΑΣ (ΚΕ.ΜΕ.Α.)

– Κωδικός  Αναθέτουσας Αρχής / Αναθέτοντα Φορέα ΚΗΜΔΗΣ : [8075693]

– Ταχυδρομική διεύθυνση / Πόλη / Ταχ. Κωδικός: Π. Κανελλοπούλου 4 , Αθήνα, 101 77

– Αρμόδιος για πληροφορίες: Σπυρίδων Ζώτος

– Τηλέφωνο: 210-7710805 εσωτ. 343

– Ηλ. ταχυδρομείο: s.zotos@kemea-research.gr

– Διεύθυνση στο Διαδίκτυο (διεύθυνση δικτυακού τόπου) (www.kemea.gr):

 

 

Β: Πληροφορίες σχετικά με τη διαδικασία σύναψης σύμβασης

– Τίτλος ή σύντομη περιγραφή της δημόσιας σύμβασης (συμπεριλαμβανομένου του σχετικού CPV): Προμήθεια Ειδών και Παροχή Υπηρεσιών για τη διαμόρφωση των εσωτερικών χώρων του Εθνικού Εκπαιδευτικού Κέντρου για την Αντιμετώπιση Συμβάντων ΧΒΡΠ-Ε, CPV (98342000-2)

– Κωδικός στο ΚΗΜΔΗΣ: 20PROC006742881

– Η σύμβαση αναφέρεται σε έργα, προμήθειες, ή υπηρεσίες : Προμήθειες και υπηρεσίες

– Εφόσον υφίστανται, ένδειξη ύπαρξης σχετικών τμημάτων : [……]

 

ΟΛΕΣ ΟΙ ΥΠΟΛΟΙΠΕΣ ΠΛΗΡΟΦΟΡΙΕΣ ΣΕ ΚΑΘΕ ΕΝΟΤΗΤΑ ΤΟΥ ΤΕΥΔ ΘΑ ΠΡΕΠΕΙ ΝΑ ΣΥΜΠΛΗΡΩΘΟΥΝ ΑΠΟ ΤΟΝ ΟΙΚΟΝΟΜΙΚΟ ΦΟΡΕΑ

 

Οι Διευκρινήσεις που δόθηκαν αποτελούν αναπόσπαστο τμήμα του τεύχους του διαγωνισμού. Κανένας υποψήφιος Ανάδοχος δεν μπορεί σε οποιαδήποτε περίπτωση να επικαλεσθεί προφορικές απαντήσεις εκ μέρους της Αναθέτουσας Αρχής.

Επιπρόσθετα θα αποσταλούν στο προσωπικό email του κάθε υποψηφίου συμπληρωματικές φωτογραφίες των εσωτερικών χώρων.

Τέλος, παρακαλούμε να τηρηθούν τα όσα αναφέρονται στο άρθρο 2.4.2 της παρούσας διακήρυξης. Οι υποψήφιοι ανάδοχοι θα πρέπει να ακολουθήσουν την διαδικασία που αναφέρεται στο ανωτέρω άρθρο για την παράδοση των προσφορών τους.

Για να δείτε την κάτοψη του χώρου κάντε κλικ εδώ.